• 5

  • 163 m2

  • 6 slaapkamers

  • C

Katwijk – Voorstraat 154

€ 685.000,-

Omschrijving

Stap binnen in dit goed onderhouden, karakteristieke herenhuis met een woonoppervlakte van maar liefs 163m² en totaal 6 slaapkamers, gelegen op een fantastische locatie in het hart van Katwijk! Op loopafstand bevinden zich het gezellige centrum, sfeervolle restaurantjes, barretjes en het strand.

Authentieke details, gecombineerd met modern wooncomfort, zorgen voor een unieke sfeer.

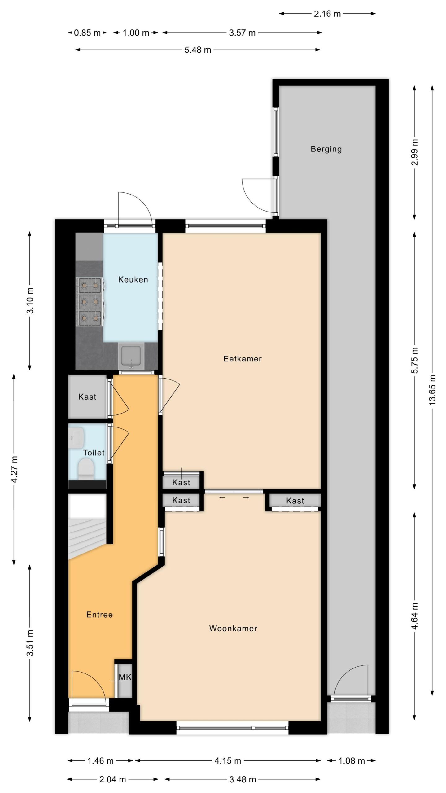
Indeling:
Begane grond:
Via de karakteristieke voordeur komt u binnen in de hal met toilet en trapkast. De sfeervolle kamer en suite is voorzien van hoge plafonds en grote raampartijen. Aan de achterzijde bevindt zich de moderne open keuken met diverse inbouwapparatuur, waaronder een luxe Boretti fornuis. Via de keuken bereikt u de beschutte achtertuin met achterom en berging.

1e verdieping:
Ruime overloop met praktische bergkast. Er zijn vier slaapkamers, waarvan één momenteel in gebruik kledingkamer. Vanuit deze deze kamer is ook het dakterras te bereiken. De complete badkamer is voorzien van een ligbad, wastafelmeubel, toilet en wasmachine-aansluiting. De gehele verdieping is afgewerkt met een onderhoudsvriendelijke PVC-vloer.

2e verdieping:
Via een vaste trap bereikt u de verrassend ruime zolderverdieping met overloop, twee volwaardige slaapkamers en veel bergruimte. Ook deze verdieping is voorzien van een onderhoudsvriendelijke PVC-vloer.

Bijzonderheden:
– Instapklaar en uitstekend onderhouden
– Energielabel: C
– Bouwjaar: 1939
– Gelegen aan de karakteristieke Voorstraat
– Nefit HR combiketel uit 2018
– Dak- en gevelisolatie
– Grotendeels voorzien van HR++ beglazing

Lees de gehele omschrijving

Kenmerken

  • Status

    Verkocht onder voorbehoud

  • Vraagprijs

    685.000

  • Oplevering

    In overleg

  • Woonoppervlakte

    163 m2

  • Perceeloppervlakte

    104 m2

  • Inhoud

    690 m3

  • Aantal kamers

    7

  • Aantal slaapkamers

    6

  • Plaats

    Katwijk

  • Adres

    Voorstraat 154

  • Soort woning

    Woonhuis

  • Type

    Herenhuis,

  • Bouwjaar

    1939

  • Bekijk alle kenmerken

Brochure

Voor deze woning zijn de volgende brochures beschikbaar: