• 5

  • 118 m2

  • 5 slaapkamers

  • B

Katwijk – Prinses Margrietlaan 56

€ 435.000,-

Omschrijving

Bent u op zoek naar een verrassend ruime woning met volop mogelijkheden? Dan is deze bijzonder lichte 6-kamer maisonnette precies wat u zoekt! De woning beschikt over een royaal souterrain (intern én extern bereikbaar), een eigen trapopgang en een zonnig terras.

Daarnaast geniet u vanuit de woning van een fraai en vrij uitzicht over de Zanderij. De ligging is ideaal: op loopafstand van winkelcentrum Bosplein, scholen en diverse voorzieningen. In uw vrije tijd wandelt u zo het duingebied in of fietst u via het nabijgelegen fietspad eenvoudig naar het centrum of het strand. Ook de uitvalswegen zijn uitstekend bereikbaar.

Het goed onderhouden appartementencomplex beschikt over een gezamenlijke tuin met zonneterras en speelvoorzieningen.

De indeling van de woning is als volgt:

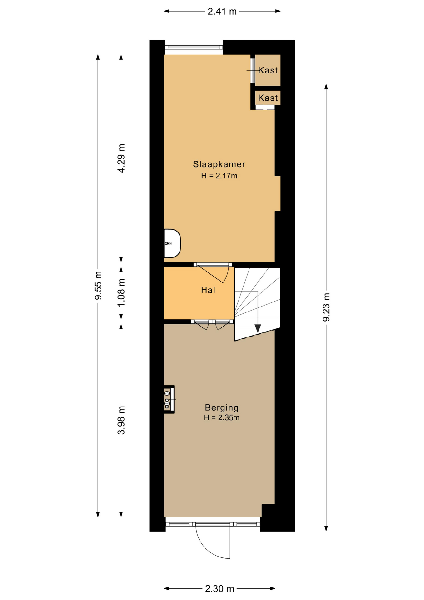
Souterrain:
Royaal souterrain, bereikbaar via zowel de woning als een eigen entree van buitenaf. Ideaal als werkruimte, hobbyruimte of extra slaapkamer. Hier bevinden zich momenteel een berging, een slaap-/werkkamer en een tussenhal met trapopgang naar de woonverdieping.

Woonverdieping:
Entree in de hal met garderobe, modern toilet (hangend) en toegang tot het souterrain en de verdieping.
De woonkamer is heerlijk licht dankzij de grote raampartijen en biedt een vrij uitzicht. Doordat het balkon bij de woonkamer is betrokken, is een extra ruime en comfortabele leefruimte ontstaan.
De moderne keuken is voorzien van diverse inbouwapparatuur en grenst aan een praktische bijkeuken met wasmachineaansluiting. Aan de voorzijde bevindt zich tevens een zonnig terras.

Slaapverdieping:
Overloop met toegang tot vier slaapkamers en de badkamer. Twee slaapkamers aan de achterzijde geven toegang tot het royale balkon op het zuidoosten, een heerlijke plek om van de zon te genieten.
De luxe badkamer (2020) is modern uitgevoerd en voorzien van een inloopdouche, hangend toilet en wastafelmeubel.

Bijzonderheden/kenmerken:
– Eigen entree;
– Royaal souterrain met veel mogelijkheden;
– Energielabel B;
– Bouwjaar 1955;
– Servicekosten € 200,- per maand;
– Grotendeels voorzien van HR++ beglazing.

Lees de gehele omschrijving

Kenmerken

  • Status

    Beschikbaar

  • Vraagprijs

    435.000

  • Oplevering

    In overleg

  • Woonoppervlakte

    118 m2

  • Inhoud

    387 m3

  • Aantal kamers

    6

  • Aantal slaapkamers

    5

  • Plaats

    Katwijk

  • Adres

    Prinses Margrietlaan 56

  • Soort woning

    Appartement

  • Type

    Maisonnette

  • Bouwjaar

    1955

  • Bekijk alle kenmerken

Brochure

Voor deze woning zijn de volgende brochures beschikbaar: