5
111 m2
3 slaapkamers
-
D
Katwijk – Romeinenstraat 6
€ 515.000,-
Omschrijving
Op loopafstand van het strand, zee en het gezellige centrum van Katwijk aan Zee ligt deze goed onderhouden twee-onder-één kap woning. De woning ligt aan een rustige en autoluwe straat met eenrichtingsverkeer. Ook uitvalswegen richting de grote steden zijn goed bereikbaar via de vernieuwde N206, waardoor steden zoals Leiden, Den Haag en Amsterdam goed aan te rijden zijn.
De woning is goed onderhouden en door de loop der jaren gemoderniseerd. Ook is er verduurzaamd door middel van zonnepanelen en (muur)isolatie. In de zomer is het ook heerlijk vertoeven vanwege de recent aangebrachte airconditioning.
De indeling is als volgt:
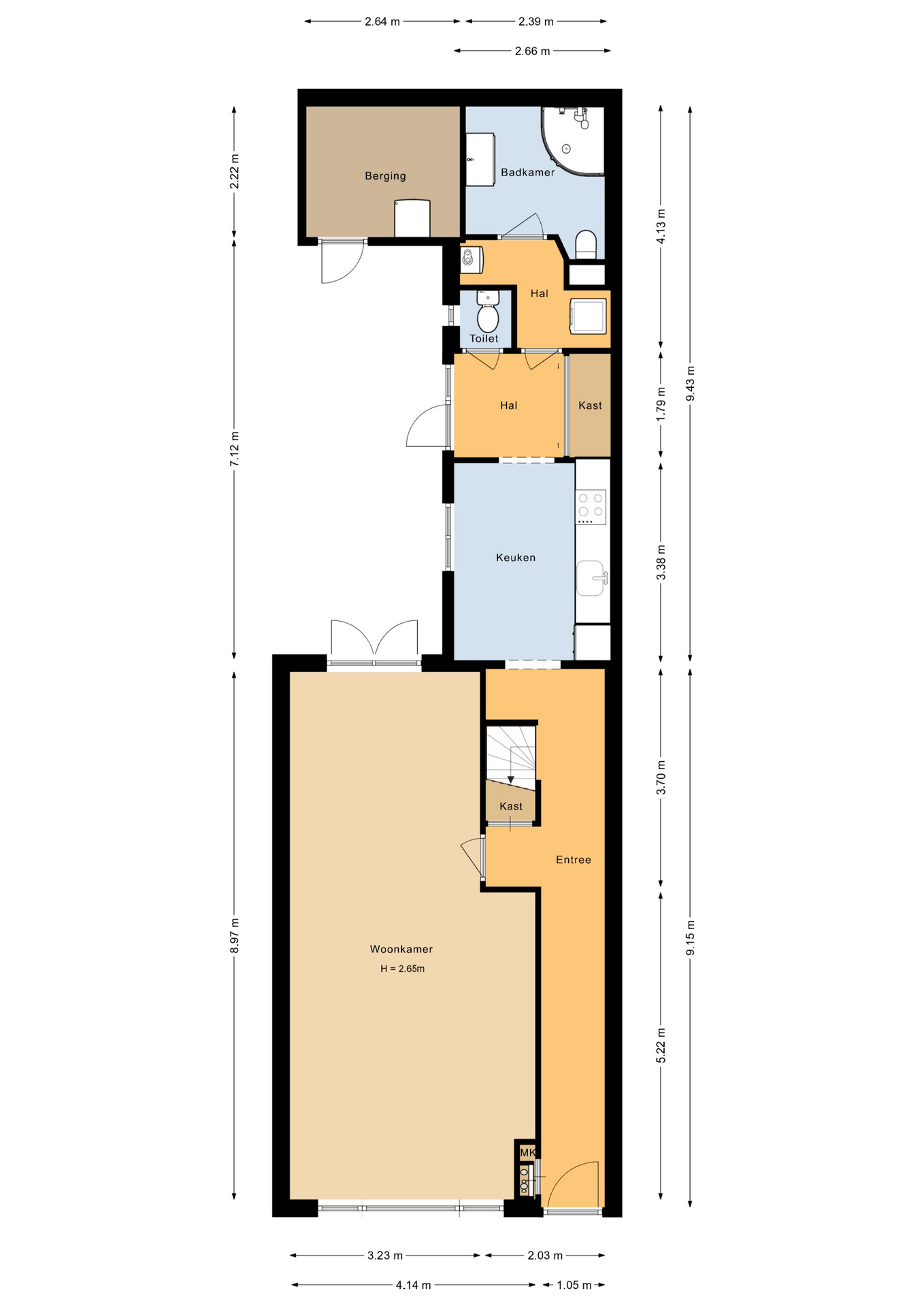
Begane grond:
Via de entree komt u in de gang (voorzien van vloerverwarming). Hiervandaan heeft u toegang tot de woonkamer, de keuken en de trap naar de verdieping. De riante woonkamer is voorzien van een nette houten vloer en openslaande deuren naar de achtergelegen plaats.
De keuken (circa 2000) is voorzien van een oven, Pelgrim inductiekookplaat, afzuigkap, losse vaatwasser (blijft achter), combimagnetron en koelkast met vriesvak. Aan de andere zijde van de keuken is er een hal met toilet, bergruimte en een deur naar de plaats. Als u verder doorloopt naar achter, komt u in een halletje met de CV-ketel (circa 11 jaar) en de badkamer. De badkamer is voorzien van een toilet, douche en wastafel. Ook is er een mooi spanplafond aangebracht.
Via de plaats (bereikbaar via de zijkant van de woning) komt u bij de berging. Deze is voorzien van elektra en gas.
Eerste verdieping:
Via de vaste trap komt u op de ruime overloop. Hiervandaan heeft u toegang tot de drie slaapkamers en een extra bergruimte (met expansievat). De slaapkamer aan de voorzijde is voorzien van een rolluik en airconditioning.
Kortom; een fantastisch huis op een centrale plek waar u zo in kunt!
Bijzonderheden:
– oplevering: in overleg, rond september/oktober 2026
– 6 zonnepanelen uit 2020
– airconditioning aanwezig (2023)
– energielabel D (aangevraagd vóór het plaatsen van de zonnepanelen)
– gedeeltelijk voorzien van vloerverwarming
– rolluiken en screen
– riool vernieuwd (pvc)
Lees de gehele omschrijving
Kenmerken
Status
Verkocht onder voorbehoud
Vraagprijs
515.000
Oplevering
In overleg
Woonoppervlakte
111 m2
Perceeloppervlakte
130 m2
Inhoud
441 m3
Aantal kamers
4
Aantal slaapkamers
3
Plaats
Katwijk
Adres
Romeinenstraat 6
Soort woning
Woonhuis
Type
Eengezinswoning,
Bouwjaar
1920
Bekijk alle kenmerken

