5
98 m2
3 slaapkamers
-
B
Katwijk – Talmastraat 9
€ 409.000,-
Omschrijving
Instapklaar, ruim en comfortabel wonen! Deze maisonnette biedt alles wat u zoekt: een royale woonkamer, drie ruime slaapkamers, een woonkeuken en een balkon over de volledige breedte van de woning. De strak gestucte wanden, fraaie visgraatlaminaatvloer, moderne keuken en het nette sanitair maken het geheel compleet.
De woning bevindt zich op de tweede woonlaag en ligt centraal ten opzichte van winkels, scholen, uitvalswegen en busverbindingen. Vanaf de galerijzijde kijkt u uit op een speelplein. Daarnaast liggen de duinen en het strand op loopafstand. Op de begane grond bevindt zich een eigen berging met elektra en voor de deur is er voldoende parkeergelegenheid.
Indeling:
Woonverdieping:
Entree in de hal met meterkast en een toiletruimte met hangend toilet. De afgesloten, modern uitgevoerde woonkeuken is voorzien van diverse inbouwapparatuur, waaronder een koelkast met vriesvak, vaatwasser, afzuigkap, combimagnetron en een 5-pits gaskookplaat. In de keuken bevindt zich tevens een praktische bergkast en de aansluiting voor de wasmachine.
De royale woonkamer van circa 26 m² is heerlijk licht en afgewerkt met een fraaie visgraatlaminaatvloer. Vanuit de woonkamer heeft u toegang tot het balkon dat zich uitstrekt over de gehele breedte van de woonkamer. Dankzij de ligging op het zuidoosten kunt u hier tot ongeveer 15.00 uur genieten van de zon.
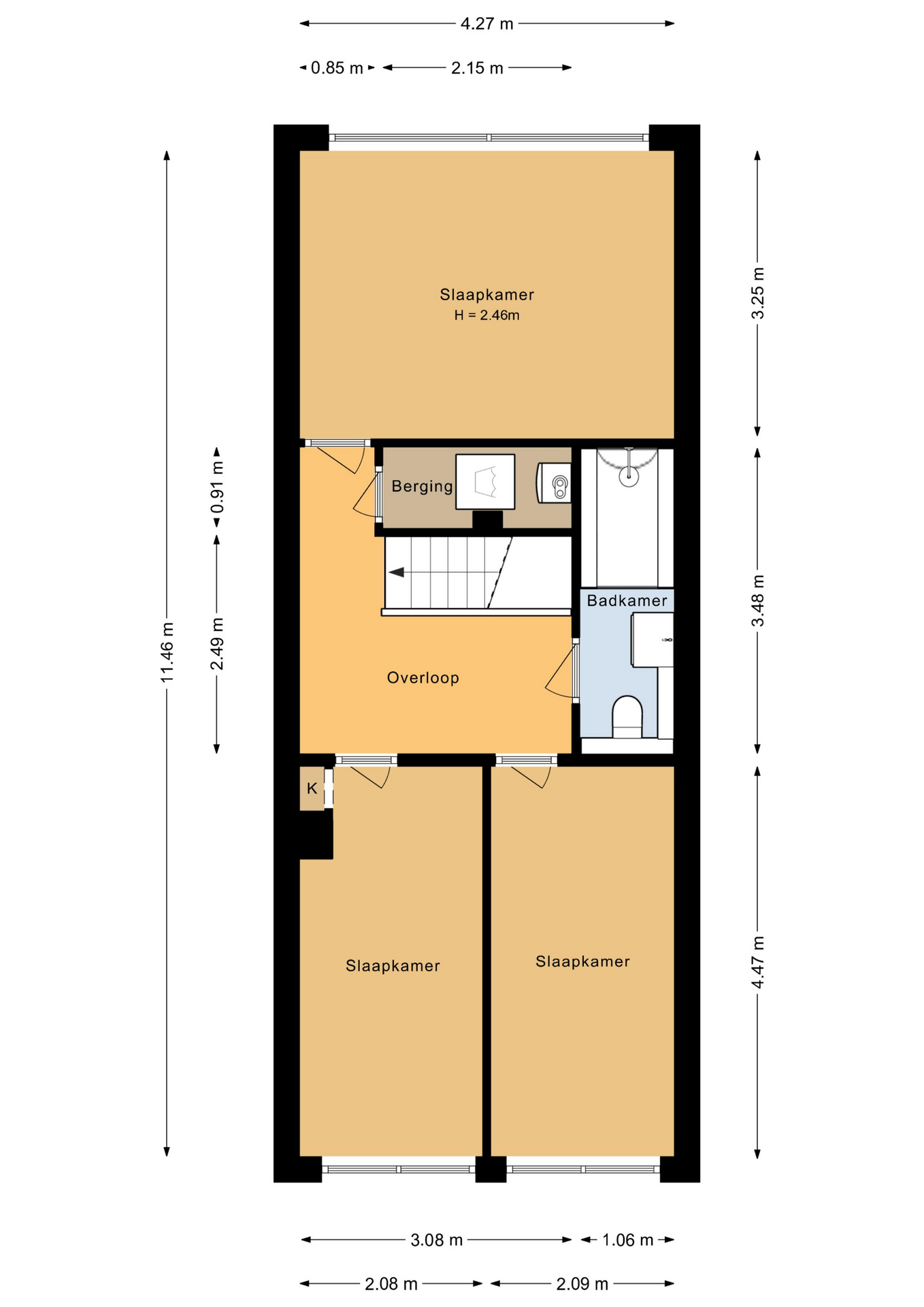
Slaapverdieping:
Via de trap bereikt u de ruime overloop met een bergkast waarin de cv-ketel is opgesteld en waar zich tevens een aansluiting voor de wasmachine bevindt. Op deze verdieping zijn drie goed bemeten slaapkamers en een nette badkamer met een tweede toilet, wastafelmeubel en ligbad.
Berging:
De berging bevindt zich op de begane grond van het appartementencomplex en is voorzien van elektra.
Bijzonderheden / kenmerken:
– Gebruiksoppervlakte wonen: ca. 98 m²;
– Bouwjaar: 1969;
– Cv-ketel: Remeha Tzerra 28c (2018);
– HR- en HR++-beglazing;
– Actieve en gezonde VvE;
– In 2024 is het dak vernieuwd en zijn de gevels gevoegd;
– Servicekosten VvE: € 175,08 per maand;
– Elektra: 6 groepen + 2 aardlekschakelaars;
– Oplevering: in overleg;
– Gelegen in een rustige, kindvriendelijke buurt met veel jonge gezinnen.
Lees de gehele omschrijving
Kenmerken
Status
Verkocht onder voorbehoud
Vraagprijs
409.000
Oplevering
In overleg
Woonoppervlakte
98 m2
Inhoud
310 m3
Aantal kamers
4
Aantal slaapkamers
3
Plaats
Katwijk
Adres
Talmastraat 9
Soort woning
Appartement
Type
Maisonnette
Bouwjaar
1969
Bekijk alle kenmerken

