5
97 m2
3 slaapkamers
-
B
Katwijk – Tramstraat 115
€ 469.000,-
Omschrijving
Pal aan de rand van het gezellige centrum van Katwijk aan Zee en op loopafstand van het strand, ligt deze luxe verbouwde (2025) woning met 3 goed formaat slaapkamers en eigen berging in de onderbouw!
Een betere locatie is moeilijk te vinden. Op loopafstand zijn nagenoeg alle dagelijkse voorzieningen bereikbaar, zoals de supermarkt, winkels, horeca gelegenheden, sportclubs en zelfs de duinen als u liever even de rust op zoekt. Via de nabijgelegen bushalte pakt u eenvoudig de bus richting Leiden Centraal. Aan de achterzijde van de woning kunt u in alle rust genieten met vrij uitzicht richting de Nieuwe Kerk, op uw eigen balkon gelegen op het zuiden!
De woning is in 2025 grondig verbouwd. De gehele woonetage is volledig verbouwd en onder andere voorzien van een nieuwe keuken, toilet, vloer en schilderwerk. Ook is de cv-ketel verplaatst naar de eerste verdieping en is er een nieuwe elektrische installatie aangebracht.
De indeling van de woning is als volgt:
Woonlaag:
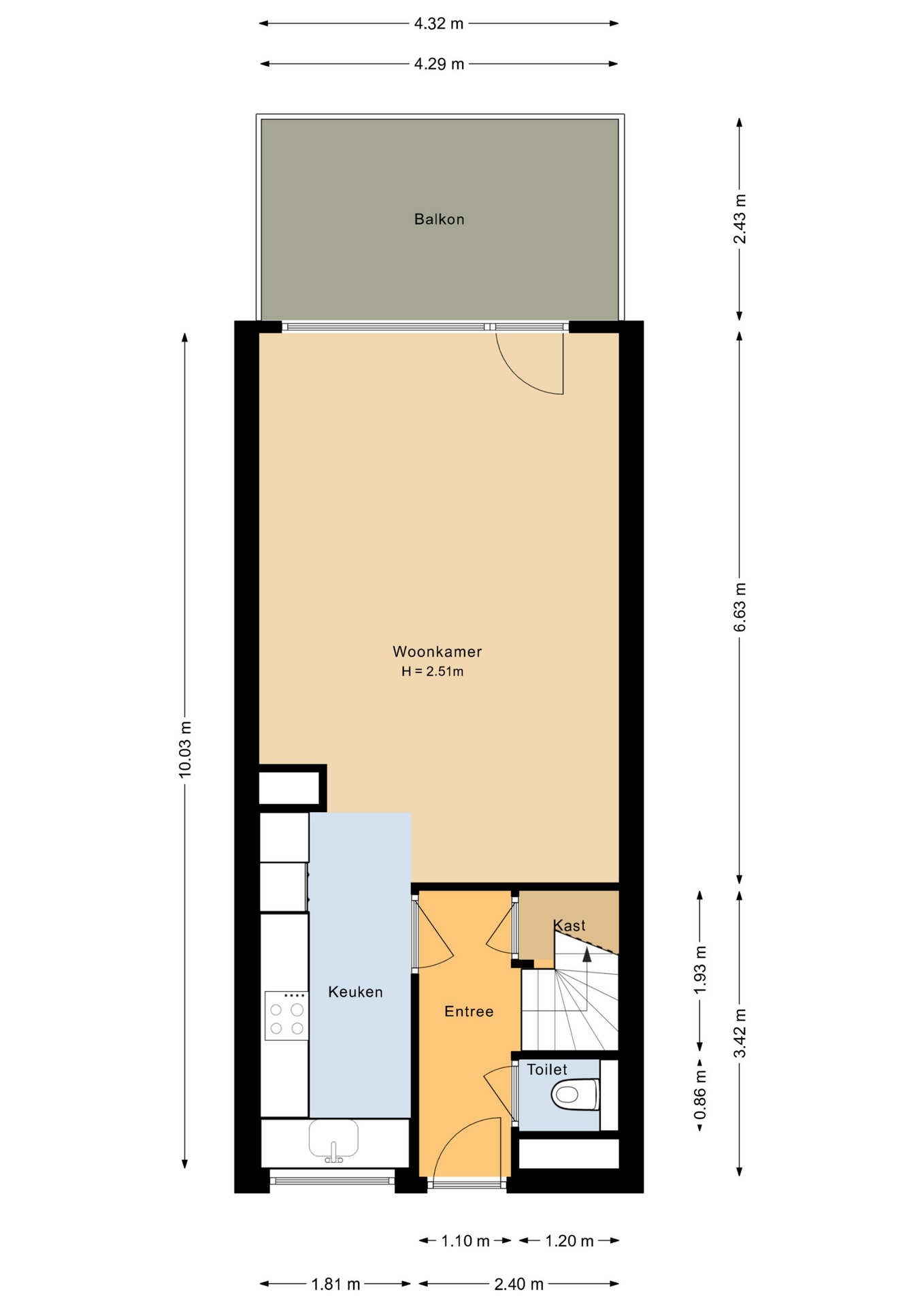
Via de entree heeft u toegang tot het toilet, de vaste trap naar de verdieping, de trapkast en de woonkamer. De lichte woonkamer is voorzien van een moderne visgraten pvc-vloer en strak gestucte wanden en plafond. Aan de achterzijde bevindt zich een zeer ruim balkon pal op het zuiden. Doordat er geen weg direct achter loopt, ligt dit balkon heerlijk rustig en privé.
Wat ook gelijk opvalt is de moderne en zeer strakke keuken, voorzien van een verlaagd plafond met spotjes. Ook is de keuken voorzien van luxe apparatuur, waaronder een inductie kookplaat met geïntegreerde afzuiging, een combi-oven, vaatwasmachine, koelkast en vriezer.
Eerste verdieping:
Via de vaste trap komt u op de verdieping. via de ruime L-vormige overloop heeft u toegang tot alle vertrekken. Aan de voorzijde van de woning ligt een ruime ouderslaapkamer met inbouwkast. De badkamer is voorzien van een douche, tweede toilet en wastafel. Verder is er een ruime bergkast en een ruimte voor de was/droogmachine opstelling op de overloop. Aan de achterzijde bevinden zich nog twee goed formaat slaapkamers.
Kortom; een heerlijk ruime maisonnette op een fantastische locatie met een groot zonnig balkon op het zuiden!
Bijzonderheden:
– oplevering medio augustus 2026
– volledige verbouwing woonetage in 2025
– nieuwe cv (2025)
– vernieuwde groepenkast
– eigen berging in de onderbouw
– nieuwe pui naar het balkon met HR++ glas
Lees de gehele omschrijving
Kenmerken
Status
Beschikbaar
Vraagprijs
469.000
Oplevering
In overleg
Woonoppervlakte
97 m2
Inhoud
321 m3
Aantal kamers
4
Aantal slaapkamers
3
Plaats
Katwijk
Adres
Tramstraat 115
Soort woning
Appartement
Type
Maisonnette
Bouwjaar
1974
Bekijk alle kenmerken

